Rif: IMMO-105350993
ASCOLI PICENO
ASCOLI PICENO
ASCOLI PICENO - CORSO VITTORIO EMANUELE
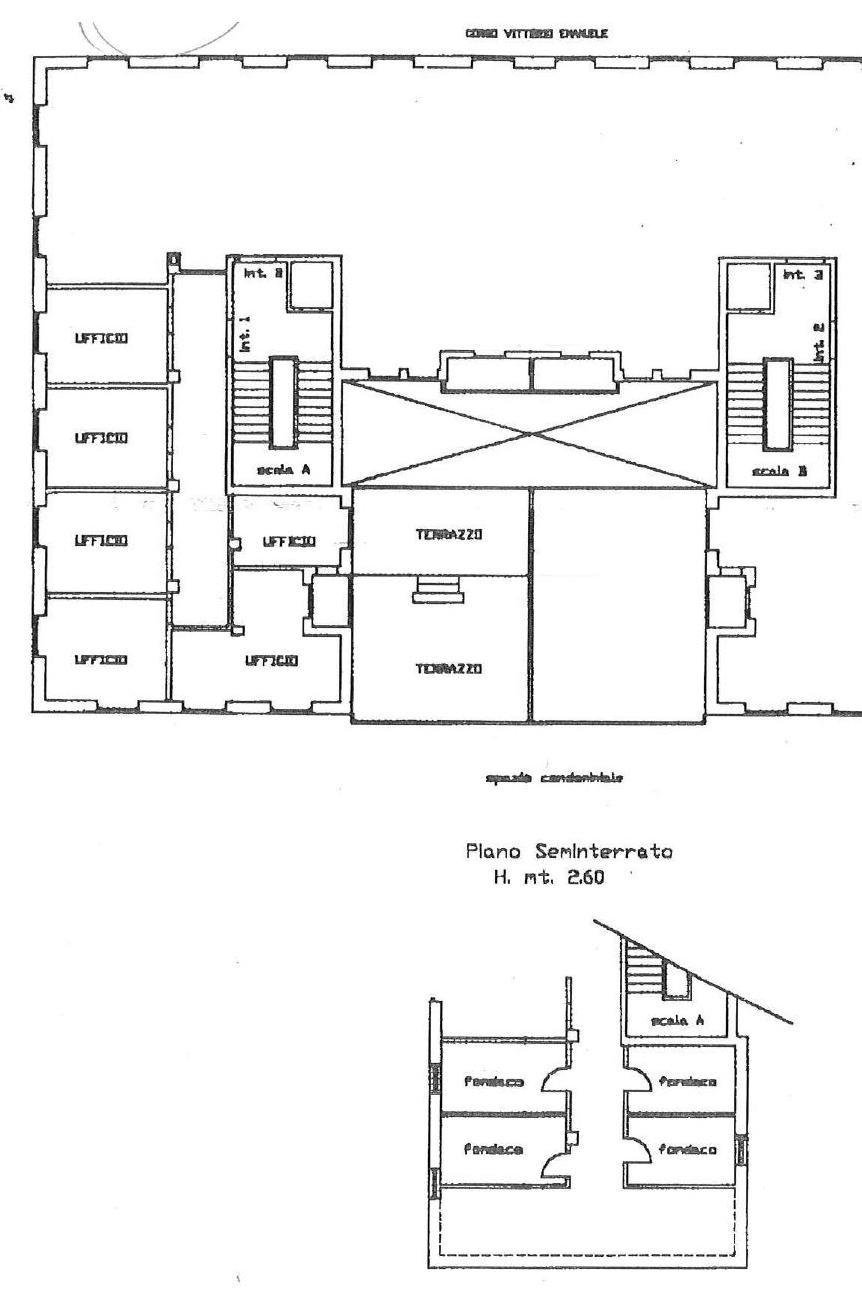
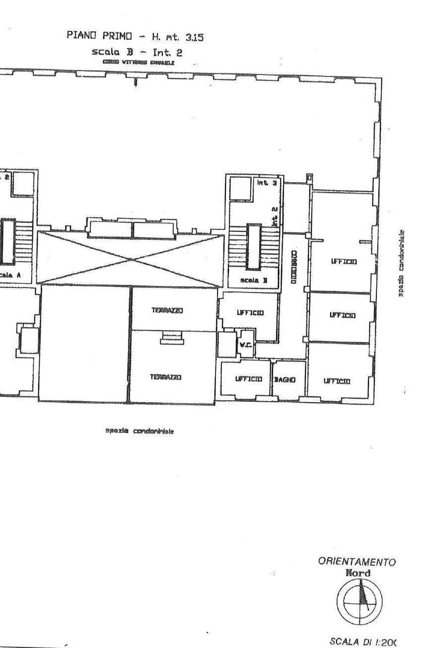
In pieno centro storico proponiamo in vendita 4 soluzioni abitative con terrazzi, balconi, fondaci e posti auto, attualmente adibiti ad uso ufficio.
Le foto nell'annuncio rappresentano lo stato attuale di tutte e quattro le unità.
Le finiture interne sono tutte degli anni 70 eccetto che per qualche miglioria effettuata nel corso degli anni.
Gli immobili rispecchiano le seguenti metrature e prezzi:
1) Foglio 169; Particella 1798; Subalterno 65; Abitazione 120 mq; Terrazzo 48 mq; Fondaco 10 Mq; Posto auto non assegnato; Prezzo 195.000 Euro.
2) Foglio 169; Particella 1798; Subalterno 67; Abitazione 120 mq; Terrazzo 48 mq; Fondaco 10 Mq; Posto auto non assegnato; Prezzo 195.000 Euro
3) Foglio 169; Particella 1798; Subalterno 68; Abitazione 117 mq; Fondaco 10 Mq; Posto auto non assegnato; Prezzo 128.000 Euro
4) Foglio 169; Particella 1798; Subalterno 85; Abitazione 165 mq; Balcone 7 mq; Fondaco 10 Mq; Posto auto non assegnato; Prezzo 190.000 Euro
Grazie alla posizione strategica e alla visibilità che offre l'ubicazione tutte le unità sono Ideali per qualsiasi tipologia di ufficio o previa ristrutturazione anche come abitazione.
In pieno centro storico proponiamo in vendita 4 soluzioni abitative con terrazzi, balconi, fondaci e posti auto, attualmente adibiti ad uso ufficio.
Le foto nell'annuncio rappresentano lo stato attuale di tutte e quattro le unità.
Le finiture interne sono tutte degli anni 70 eccetto che per qualche miglioria effettuata nel corso degli anni.
Gli immobili rispecchiano le seguenti metrature e prezzi:
1) Foglio 169; Particella 1798; Subalterno 65; Abitazione 120 mq; Terrazzo 48 mq; Fondaco 10 Mq; Posto auto non assegnato; Prezzo 195.000 Euro.
2) Foglio 169; Particella 1798; Subalterno 67; Abitazione 120 mq; Terrazzo 48 mq; Fondaco 10 Mq; Posto auto non assegnato; Prezzo 195.000 Euro
3) Foglio 169; Particella 1798; Subalterno 68; Abitazione 117 mq; Fondaco 10 Mq; Posto auto non assegnato; Prezzo 128.000 Euro
4) Foglio 169; Particella 1798; Subalterno 85; Abitazione 165 mq; Balcone 7 mq; Fondaco 10 Mq; Posto auto non assegnato; Prezzo 190.000 Euro
Grazie alla posizione strategica e alla visibilità che offre l'ubicazione tutte le unità sono Ideali per qualsiasi tipologia di ufficio o previa ristrutturazione anche come abitazione.
Consistenze
| Descrizione | Superficie | Sup. comm. |
|---|---|---|
| Principali | ||
| Immobile - 1° piano | 165 Mq | 165 Mqc |
| Balcone - 1° piano | 8 Mq | 2 Mqc |
| Cantina - seminterrato | 10 Mq | 5 Mqc |
| Posto auto | 10 Mq | 1 Mqc |
| Totale | 173 Mqc | |
