Rif: IMMO-118180449
FOLIGNANO
ASCOLI PICENO
VIA CUNEO - VILLA PIGNA | FOLIGNANO
Proponiamo in vendita villino bifamiliare con giardino privato, garage e rustico in bioedilizia di nuova costruzione.
Il progetto originale prevede che l'abitazione sia composta da tre livelli così suddivisi:
Al piano seminterrato è presente l'ingresso al garage più rustico.
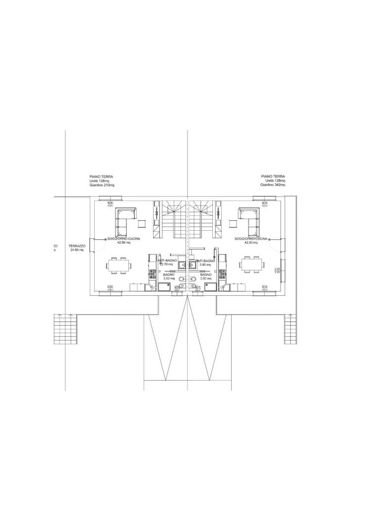
Al piano terra, ingresso su soggiorno con cucina a vista e bagno con box doccia e finestra.
Al piano primo, una camera da letto matrimoniale, due camere singole, un bagno con box doccia, due balconi.
Completano la proprietà un giardino e un box auto al piano terra.
Tutti i piani sono collegati da scala interna e la divisione degli ambienti è personalizzabile a piacimento.
Si specifica che la costruzione sarà interamente in bioedilizia, ovvero presenterà struttura portante in cemento armato, tamponatura in canapa, tetto e solai in legno e risulterà energeticamente autosufficiente grazie all'installazione dell'impianto fotovoltaico (non è dunque previsto l'allaccio del gas).
La richiesta complessiva per il villino CHIAVI IN MANO, incluso il costo del terreno edificabile e degli oneri tecnici e di urbanizzazione, è di Eu. 270.000.
Soluzione in zona centrale e immersa nel verde.
RIEPILOGO METRATURE: 64 MQ OGNI PIANO, GIARDINO 270 MQ
Proponiamo in vendita villino bifamiliare con giardino privato, garage e rustico in bioedilizia di nuova costruzione.
Il progetto originale prevede che l'abitazione sia composta da tre livelli così suddivisi:
Al piano seminterrato è presente l'ingresso al garage più rustico.
Al piano terra, ingresso su soggiorno con cucina a vista e bagno con box doccia e finestra.
Al piano primo, una camera da letto matrimoniale, due camere singole, un bagno con box doccia, due balconi.
Completano la proprietà un giardino e un box auto al piano terra.
Tutti i piani sono collegati da scala interna e la divisione degli ambienti è personalizzabile a piacimento.
Si specifica che la costruzione sarà interamente in bioedilizia, ovvero presenterà struttura portante in cemento armato, tamponatura in canapa, tetto e solai in legno e risulterà energeticamente autosufficiente grazie all'installazione dell'impianto fotovoltaico (non è dunque previsto l'allaccio del gas).
La richiesta complessiva per il villino CHIAVI IN MANO, incluso il costo del terreno edificabile e degli oneri tecnici e di urbanizzazione, è di Eu. 270.000.
Soluzione in zona centrale e immersa nel verde.
RIEPILOGO METRATURE: 64 MQ OGNI PIANO, GIARDINO 270 MQ
Consistenze
| Descrizione | Superficie | Sup. comm. |
|---|---|---|
| Principali | ||
| Immobile - 1° piano | 64 Mq | 64 Mqc |
| Immobile - piano terra | 64 Mq | 64 Mqc |
| Box/Garage - seminterrato | 64 Mq | 32 Mqc |
| Balcone - 1° piano | 8 Mq | 2 Mqc |
| Balcone - 1° piano | 5 Mq | 2 Mqc |
| Giardino/Resede | 270 Mq | 5 Mqc |
| Totale | 169 Mqc | |
