Rif: IMMO-126027009
SAN BENEDETTO DEL TRONTO
ASCOLI PICENO
VIA CATALAFIMI 61, SAN BENEDETTO DEL TRONTO (AP).
In un palazzo ristrutturato nel 94, in buone condizioni, proponiamo appartamento su più livelli in pieno centro a San Benedetto del Tronto.
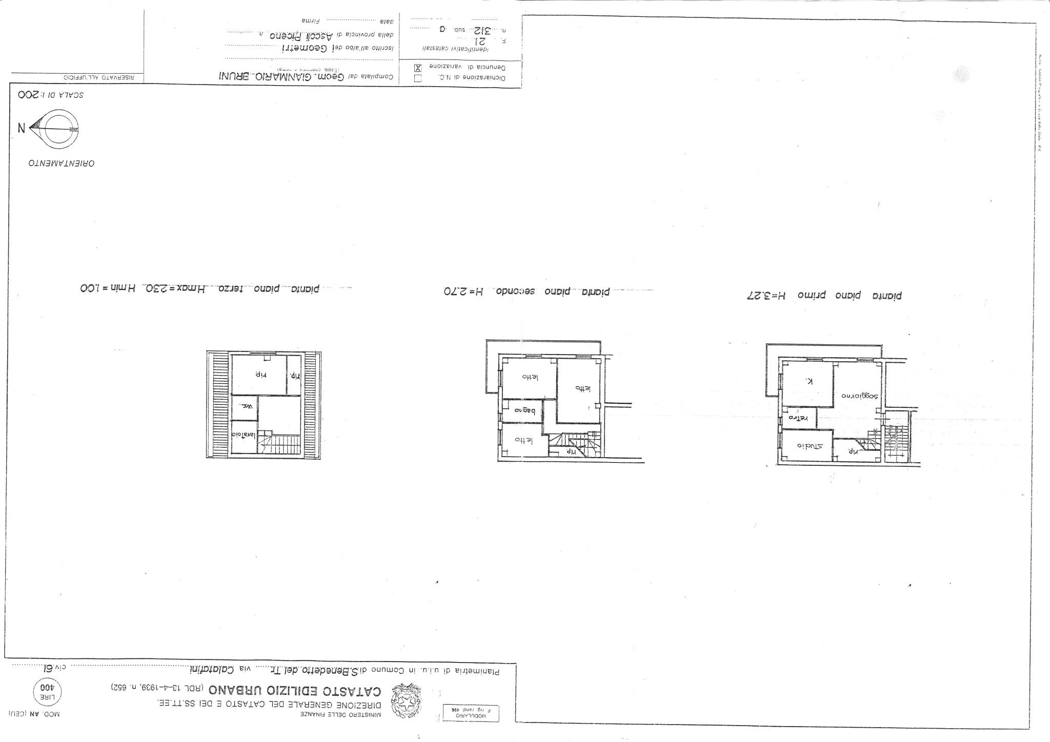
L'immobile si compone al piano 1° da ingresso su soggiorno, sala da pranzo con retro cucina, studio, un comodo ripostiglio e balcone con affaccio a nord e est.
Tramite scala interna si accede al piano 2°, composto dalla zona notte con tre camere di cui due matrimoniali e una singola, bagno finestrato e balcone con affaccio a nord e est.
All'ultimo piano troviamo un locale ad uso lavatoio, un bagno e un ripostiglio.
Le finiture risalgono alla metà degl'anni 90 e presentano pavimenti in gres, infissi in legno con doppio vetro, porte a battente in legno tamburato, impianti autonomi, riscaldamento con termosifoni in alluminio e caldaia.
L'immobile si trova nel pieno centro di San Benedetto del Tronto, a due passi da tutti i principali servizi, dall'isola pedonale e dalla stazione.
La soluzione è ideale per famiglie che necessitano di ampi spazi o per uso investimento, in quanto vi è la possibilità di poter frazionare l'immobile in due unità abitative.
RIEPILOGO METRATURE: APPARTAMENTO 178 MQ; BALCONI 27 MQ.
In un palazzo ristrutturato nel 94, in buone condizioni, proponiamo appartamento su più livelli in pieno centro a San Benedetto del Tronto.
L'immobile si compone al piano 1° da ingresso su soggiorno, sala da pranzo con retro cucina, studio, un comodo ripostiglio e balcone con affaccio a nord e est.
Tramite scala interna si accede al piano 2°, composto dalla zona notte con tre camere di cui due matrimoniali e una singola, bagno finestrato e balcone con affaccio a nord e est.
All'ultimo piano troviamo un locale ad uso lavatoio, un bagno e un ripostiglio.
Le finiture risalgono alla metà degl'anni 90 e presentano pavimenti in gres, infissi in legno con doppio vetro, porte a battente in legno tamburato, impianti autonomi, riscaldamento con termosifoni in alluminio e caldaia.
L'immobile si trova nel pieno centro di San Benedetto del Tronto, a due passi da tutti i principali servizi, dall'isola pedonale e dalla stazione.
La soluzione è ideale per famiglie che necessitano di ampi spazi o per uso investimento, in quanto vi è la possibilità di poter frazionare l'immobile in due unità abitative.
RIEPILOGO METRATURE: APPARTAMENTO 178 MQ; BALCONI 27 MQ.
Consistenze
| Descrizione | Superficie | Sup. comm. |
|---|---|---|
| Principali | ||
| Immobile - piano rialzato | 178 Mq | 178 Mqc |
| Balcone - 1° piano | 27 Mq | 8 Mqc |
| Totale | 186 Mqc | |
